YAO-YAMAMOTO八尾山本
PLANプラン
全区画40坪以上。
南東角に位置した分譲地の為、どの区画も日当たり良好。
第一種低層住居専用地域で全区画40坪以上ある為、ゆとりをもったプランニングが可能。
建築士事務所とのコラボレーションによる自由設計にてあなただけの邸をプランニング致します。
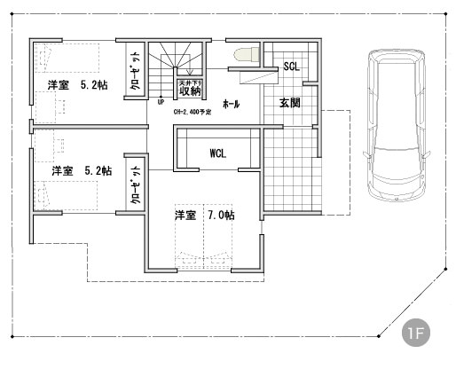
2号地
- 迎える邸
- アウトドアリビングを玄関アプローチに取り込んだプラン。毎日の帰宅時や来客時にアウトドアリビングとそこで過ごす人が出迎えてくれる。
- 敷地面積160.97㎡(約48.69坪)
- 建築面積76.87㎡
- 1階床面積69.56㎡
- 2階床面積49.68㎡
- 延床面積119.24㎡(約36.07坪)


3号地
- 広々バルコニー
充実プラン - 延床面積を抑えながらも廊下を最小限にすることで、1Fに和室、2FにWCL付寝室、子供部屋2部屋、さらにはバルコニーを広々設けた充実プラン。
- 敷地面積150.46㎡(約45.51坪)
- 建築面積67.90㎡
- 1階床面積57.96㎡
- 2階床面積43.88㎡
- 延床面積101.84㎡(約30.80坪)


4号地
- 家事楽の
2Fリビングプラン - SCL・WIC・パントリーなど収納が充実しており、キッチンから洗面・脱衣・バルコニーへの家事動線も抜群のプラン。
- 敷地面積137.40㎡(約41.56坪)
- 建築面積63.06㎡
- 1階床面積51.34㎡
- 2階床面積50.92㎡
- 延床面積102.26㎡(約30.93坪)




